







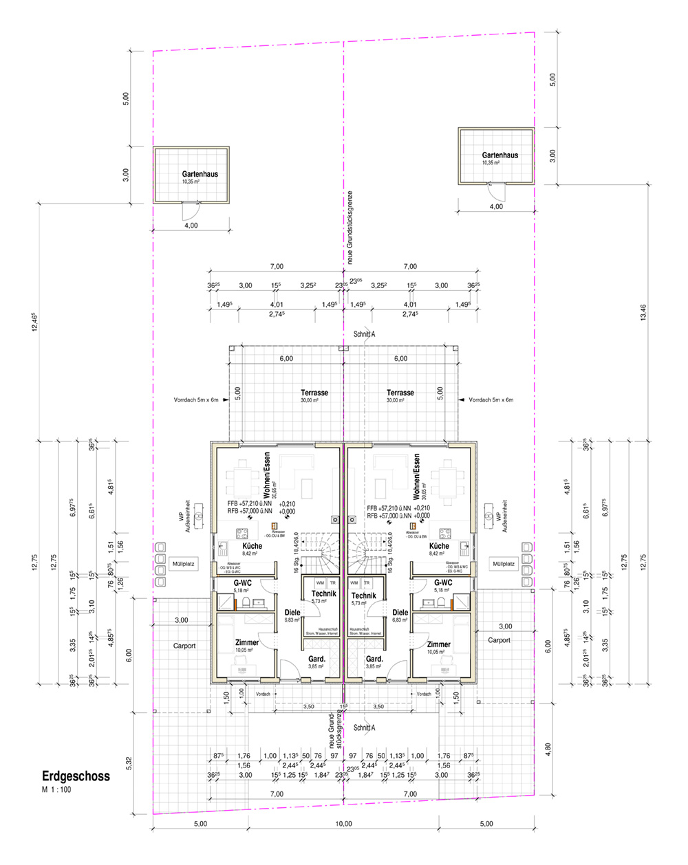
Projekt in Kutenhausen: Doppelhaus
Bauart:
• Holzrahmenbau
• Satteldach
• Sichtbarer Dachstuhl
• Außenfassade / verputzte Holzweichfaserplatte und Holzbrett-Imitat
• Kunststofffenster, Alu-Haustür
• Heizung / Luftwärmepumpe
• Strom / Photovoltaik
Bei Interesse Detailabsprache möglich.

